Neubau
Neues Lernen braucht neue Räume! Ab August 2026 beziehen wir unsere neuen Räumlichkeiten an der Oberen Holtener Straße in Duisburg-Röttgersbach. Das neue Schulgebäude ist als Cluster-Sdchule mit offenen Lernlandschaften konzipiert, die modernes, flexibles und zukunftsorientiertes Lernen optimal unterstützen. Der Schulhof mit Aktivitäts- und Ruhezonen und die große Sporthalle bieten einenTreffpunkt nicht nur für die Schulgemeinschaft, sondern für das ganze Viertel.
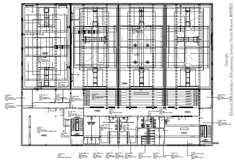
Die sechszügige Gesamtschule der Sekundarstufe I ist für 1.300 Schülerinnen ausgelegt, verfügt über drei Vollgeschosse und erreicht einen Übergang von 50 % in die gymnasiale Oberstufe (G9). Ergänzend entsteht eine Sporthalle mit vier Übungseinheiten und einer Tribüne für 350 Zuschauerinnen. Die Tragkonstruktion mit Flächen von 27.223 m² Grundstück, 20.336 m² Schulgebäude und 4.001 m² Sporthalle ermöglicht flexible Grundrisse und ist auf Nachhaltigkeit ausgerichtet.

Unser pädagogisches Raumkonzept:












